Ismertető
Egy modern, világos és prémium kivitelezésű ingatlant keresel a felkapott környéken? Ezt most neked álmodtuk meg! Az új építésű, panorámás ingatlanunk egy csendes, biztonságos és kiválóan ellátott környéken épül, ahol minden megtalálható a mindennapi élethez szükséges dolgoktól kezdve a kikapcsolódási lehetőségekig.
Nagy referenciával* rendelkező helyi vállalkozó készíti, aki minden kérdés és kérés esetén rendelkezésünkre áll. Az építkezés szerződés után azonnal elkezdődik, és 6 hónapon belül kulcsrakész lesz.
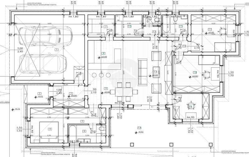
Az ingatlan állapota új építésű, így minden részletét az Ön igényeinek megfelelően alakítottuk ki. Az építkezés már elkezdődött, jelenleg az alapozás utáni állapot látható.
Műszaki adatok:
-Alapozás: Monolit vasbeton sávalap (C16/20), lépcsősen kialakítva, szélessége 50 cm. Talpkoszorú: 25x30 cm, 3+3 db Ø12 mm fővassal, Ø8/20 kengyelezéssel.
-Lábazati falazat: 30 cm vastag ZSK-30 zsalukő, soronként 2 db Ø12 mm fővassal.
-Koszorú: 25 cm magas monolit vasbeton (C20/25), 4 db Ø12 mm fővassal, Ø8/20 kengyelezéssel, 5 cm hőszigeteléssel.
-Felmenő falazat: 30 cm vastag Ytong Classic 30 pórusbeton tégla.
-Nyílásáthidalás: 25 cm magas monolit vasbeton
-Födémszerkezet: I. osztályú fenyő fafödém, sűrített gerendázattal, acél vagy fakötéses rögzítéssel.
-Tetőszerkezet: Kétszékes fa fedélszék, állások távolsága 70 cm.
-Héjazat: Kerámia cserépfedés ( választható szín)
-Hőszigetelés: 30 cm Austrotherm padlásfödém-szigetelés, 12 cm Austrotherm NT-100 lépésálló szigetelés.
-Nyílászárók: Egyedi fehér műanyag külső nyílászárók (U=1,1 W/m²K), tripla üvegezésű 6 légkamrás, aeroco szellőzővel, belső fa ajtók.
-Homlokzat: Austrotherm AT-H80 hőszigetelés, weber vékonyvakolat (bordó és antracit színek).
-Bádogos szerkezetek: Horganyzott ereszcsatorna
-Burkolatok: Greslap, padlóburkoló lap ( költségkereten belül választható), laminált melegburkolat
-Belső festés: Fehér diszperzit festés, külső fa szerkezetek barnára festve.
-Járda: 6 cm térkő, 10 cm kavicságyon, C10 beton szegéllyel, vízelvezetéssel.
-Gépészet: kondenzációs gázkazán, split klímás fűtés-hűtés vagy hőszivattyú padlófűtéssel.
-Elektromos hálózat: 220V légvezeték, főelosztó kismegszakítókkal, tűzeseti lekapcsolással, H-tarifás óra opció
A burkolatok és a beltéri ajtók a vállalkozó által biztosított összeghatárig választhatóak:
• Hidegburkolat: 5.000.-/m2
• Melegburkolat: 5.000.-/m2
• Beltéri ajtók: 60.000.-/db
• Fürdőkád: 50.000.-
• Csaptelepek: 15000.-/db
A környék előnyeit tekintve, természetvédelmi területek és erdők is találhatóak a közelben, így a természet szerelmesei számára is ideális helyszín lehet az ingatlan. Emellett a város központjában üzletek, szolgáltatások és étterem is található, így a mindennapi élethez szükséges dolgok is könnyen elérhetőek. Budapest 35-40p alatt elérhető.
Ha kérdése merülne fel az ingatlanról, vagy érdeklődne további részletek iránt, bátran keressen minket.
AZ INGATLAN CSOK+ KÉPES!
Várható befejezés 2025. ősz
Intor Ingatlan – Otthont biztonságban!
Irodánk rendelkezésére áll az értékesítés első lépésétől, egészen az utolsóig. Amennyiben valamelyik ingatlanunkat jelenlegi ingatlanja értékesítése után kívánja megvásárolni, vagy egy megbízható irodával kívánna együttműködni, amely teljeskörű ügyintézést biztosít, megfizethető áron, forduljon hozzánk bizalommal!
Részletek
-
Építés éve:
2025 -
Szobák száma:
6 -
Félszobák száma:
1 -
Állapot:
új -
Épület típusa:
családiház -
Kilátás:
panorámás -
Tájolás:
DK -
Telekméret:
906 m2 -
Övezet:
nincs adat -
Tetőtér:
nincs adat
