Ismertető
Kivételes lehetőség! 8 db projekt ingatlan kerül értékesítésre a Kertész utcában. Költözzön Hort újépítésű részére!
Eladásra kínálunk Horton, 1400 nm-es telken elhelyezkedő új építésű ingatlant.
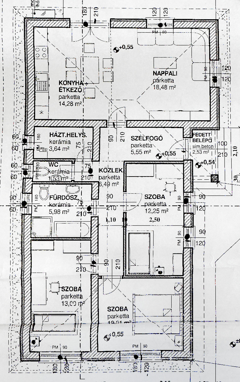
A megvalósuló családi ház 93 nm lakóterületű, mely amerikai konyhás nappali, 3 szoba, WC, fürdőszoba, háztartási helyiségből áll.
Az ingatlan 30-as nútféderes tégla falazóelemből épül, fa födémmel.
A tető antracit színű betoncserép héjazatot kap.
A homlokzat 15 cm EPS, a padló 10 cm Austrotherm AT-N100-as, míg a vízszintes födém 25 cm ásványgyapot hőszigetelést kap.
Épület nyílászárók: fehér műanyag, háromrétegű hőszigetelt üvegezéssel készülnek.
Belső nyílászárók: furnérozott ajtók, igény szerint üvegezéssel.
A fűtésről monoblokkos hőszivattyús rendszer gondoskodik, padlófűtéssel.
A műszaki tartalom az alábbi kereteken belül szabadon választható:
Hidegburkolat: 3.000 Ft/m²-ig
Melegburkolat: 3.000 Ft/m²-ig
Csaptelepek: 15.000 Ft/db
Kád vagy zuhany: 40.000 Ft/db
Beltéri ajtók: 35.000 Ft/db
Elektromos rendszer kiépítése:
Szobák: 3 konnektor/helyiség
Nappali: 4 konnektor + internet- és kábeltévé előkészítés
Konyha: 6 konnektor
Világítás: helyiségenként 1 kiállás
Kábeltévé: előkészítve
A megadott költségkeret feletti műszaki tartalom is választható, a különbözet finanszírozásával.
Előkészítésre kerül a riasztórendszer és a kapunyitó elektronika is.
Igény esetén komplett tervdokumentációt és részletes műszaki leírást biztosítunk.
Várható átadás: szerződés után 8 hónap
Ingyenes hiteltanácsadás és CSOK Plusz, Otthon Start ügyintézés!
Bankfüggetlen hitelcentrumunk az összes hazai bank és hitelintézet ajánlatát versenyezteti az Ön érdekében — díjmentesen.
- Egyedi, bankfiókban nem elérhető kamat- és díjkedvezmények
- Hitelképesség előminősítés
- Idő-, energia- és pénzmegtakarítás
- Teljes körű ügyintézés
Részletek
-
Építés éve:
2026 -
Szobák száma:
3 -
Állapot:
új -
Épület típusa:
családiház -
Kilátás:
utcai -
Tájolás:
É -
Telekméret:
1400 m2 -
Övezet:
nincs adat -
Tetőtér:
nincs adat
