Ismertető
Álmodozott már arról, hogy egy modern, alacsony rezsijű otthonban éljen, ahol a kert kapujában kezdődik a szabadság?
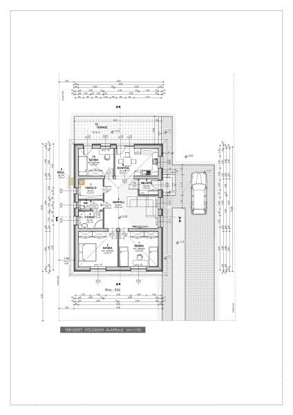
Az ingatlan főbb jellemzői:
Telekterület: 811 m²-es összközműves ( gáz az utcán), rendezett telek.
A kivitelező több azonos terv alapján készült ingatlant valósított meg Tápiószecsőn
Átadás: szerződés után 9 hónap.
Elérhető támogatások:
-CSOK Plusz
-Otthon Start
Szerkezet és szigetelés:
-Falazat: 30 cm nútféderes tégla
-Födém: fafödém
-Tetőfedés: antracit színű betoncserép
-Homlokzat: 15 cm EPS hőszigetelés
-Padló: 10 cm Austrotherm AT-N100 szigetelés
-Vízszintes födém: 25 cm ásványgyapot szigetelés
Nyílászárók:
-Hat légkamrás, háromrétegű üvegezéssel szerelt ablakok
Fűtés:
-Monoblokkos hőszivattyús rendszer
-Padlófűtés
Alap műszaki tartalom (választható keretösszegekig):
-Hidegburkolat: 3.000 Ft/m²
-Melegburkolat: 3.000 Ft/m²
-Csaptelepek: 15.000 Ft/db
-Kád vagy zuhanyzó: 40.000 Ft
-Beltéri ajtók: 35.000 Ft/db
Elektromos kiépítés:
-Szobánként 3 konnektor
-Nappaliban 4 konnektor + internet és kábel TV kiállás
-Konyhában 6 konnektor
-Világítás helyiségenként 1 db
-Kábeltévé előkészítés
További lehetőségek:
-Magasabb kategóriájú műszaki tartalom is választható a különbözet finanszírozásával
-Riasztórendszer előkészítés
-Kapumozgató elektronika előkészítés
EXTRÁK ÉS LEHETŐSÉGEK:
Az ingatlan igazi különlegessége, hogy a ház mögötti területen további 5 hektáros mezőgazdasági telek vásárolható kizárólagos használattal, mindössze +2,5 millió Ft-os áron! Ez a hatalmas terület kiválóan alkalmas gazdálkodásra, állattartásra vagy egyszerűen csak a zavartalan privát szféra biztosítására.
Finanszírozás:
Az ingatlan megfelel a CSOK Plusz és az Otthon Start támogatások feltételeinek, így kedvező hitelkonstrukciókkal költözhet be álmai otthonába.
Ár: 71,99m + 2,5M Ft (opcionális extra telek)
-20% önrésszel
Ne maradjon le erről az egyedülálló lehetőségről! Hívjon bizalommal, és tekintse meg leendő otthonát!
Részletek
-
Építés éve:
2025 -
Szobák száma:
4 -
Állapot:
új -
Épület típusa:
családiház -
Terasz:
16 m2 -
Kilátás:
kertre néz -
Tájolás:
ÉK -
Telekméret:
811 m2 -
Övezet:
nincs adat -
Tetőtér:
nincs adat
