Ismertető
Ez a kistarcsai családi ház ideális választás azoknak, akik nyugodt kertvárosi környezetben szeretnének élni, mégis gyorsan elérni Budapestet.
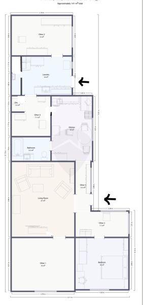
Kistarcsán, csendes, rendezett, kiváló lakóközösségű utcában kínálunk megvételre egy 125 nm-es lakóterületű, két bejárattal rendelkező, kétgenerációs családi házat. A külön bejáratú lakrészek lehetővé teszik több generáció együttélését, de alkalmas lehet bérbeadásra vagy otthoni vállalkozás kialakítására is.
A ház masszív tégla falazattal épült, tetőfedése időtálló Bramac cserép. A korszerű műanyag nyílászárók jó hőszigetelést biztosítanak. A fűtésről kombi gázkazán és vegyes tüzelésű kazán gondoskodik, a hőleadás a szobákban radiátorokon keresztül történik, míg a többi helyiségben kellemes padlófűtés biztosítja a komfortot.
A szobák burkolata igényes szalagparketta, amely tovább fokozza az otthon meleg hangulatát.
Az ingatlan egy 1073 nm-es, gondozott telken helyezkedik el, ahol gyümölcsfák is megtalálhatók – tökéletes helyszín pihenéshez vagy családi összejövetelekhez. Udvaron fúrt kút található, így megoldott a kert gondozásához szükséges víz. A 11 nm-es terasz ideális a reggeli kávézáshoz vagy esti kikapcsolódáshoz.
A parkolásról garázs, valamint térkövezett felszíni gépkocsibeálló gondoskodik.
Ez az otthon kiváló elhelyezkedésének, praktikus kialakításának és barátságos környezetének köszönhetően ritka lehetőség a piacon.
Ne hagyja ki – jöjjön el, és szeressen bele!
Részletek
-
Építés éve:
1970 -
Szobák száma:
4 -
Állapot:
jó -
Fűtés:
kazán -
Épület típusa:
családiház -
Terasz:
11 m2 -
Kilátás:
utcai -
Tájolás:
D -
Telekméret:
1079 m2 -
Övezet:
nincs adat -
Tetőtér:
nincs adat
