Ismertető
Tápióságon a Bicskei úton kínálunk eladásra egy új építésű, önálló családi házat, amely 1200 m²-es telken helyezkedik el.
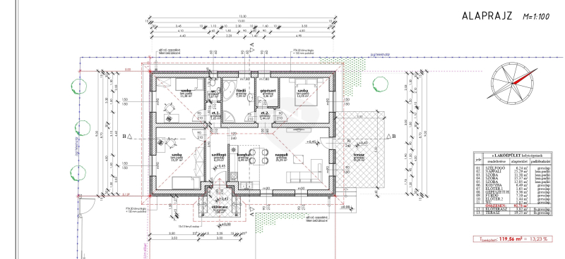
A ház nettó 93 m² hasznos alapterülettel rendelkezik, praktikus elrendezéssel és modern kivitelezéssel.
Átadás: szerződés után 9 hónappal
Modern építés és minőségi alapanyagok
– Falazat: 30-as nútféderes tégla
– Födém: fa szerkezetű
– Tető: antracit színű betoncserép
– Homlokzat: 15 cm EPS hőszigeteléssel
– Padlószigetelés: 10 cm Austrotherm AT-N100
– Födémszigetelés: 25 cm ásványgyapot
– Nyílászárók: 6 légkamrás, 3 rétegű üvegezéssel
A korszerű anyaghasználatnak köszönhetően a ház energiatakarékos és alacsony fenntartású lesz.
Fűtés és energetika
– Hőszivattyús fűtési rendszer (monoblokkos kivitel)
– Teljes padlófűtés biztosítja az egyenletes hőérzetet
Választható belső kialakítás
A burkolatok, szaniterek és ajtók a kivitelező által biztosított keretösszegen belül választhatók:
– Hidegburkolat: 3.000 Ft/m²-ig
– Melegburkolat: 3.000 Ft/m²-ig
– Csaptelepek: 15.000 Ft/db
– Kád vagy zuhany: 40.000 Ft
– Beltéri ajtók: 35.000 Ft/db
Igény esetén természetesen magasabb kategóriájú anyagok is beépíthetők, a különbözet megfizetésével.
Elektromos rendszer és előkészítések
– Szobákban: 3 konnektor
– Nappaliban: 4 konnektor + internet és kábeltévé kiállás
– Konyhában: 6 konnektor
– Világítás: helyiségenként 1-1 kiállás
– Kábeltévé: előkészítés
– Riasztó és kapumozgató rendszer előkészítés
További információk
– A teljes tervdokumentáció és műszaki leírás hamarosan elérhető
– A kivitelező korábbi házai referenciaként megtekinthetők
– Várható átadás: 8 hónapon belül
Pénzügyi és támogatási lehetőségek
– Ingyenes hiteltanácsadás és CSOK Plusz ügyintézés
– Bankfüggetlen
– Teljes körű, díjmentes ügyintézés
A képek látványtervek
Intor Ingatlan
Részletek
-
Építés éve:
2026 -
Szobák száma:
4 -
Állapot:
új -
Épület típusa:
családiház -
Terasz:
20 m2 -
Kilátás:
kertre néz -
Tájolás:
ÉK -
Telekméret:
1200 m2 -
Övezet:
nincs adat -
Tetőtér:
nincs adat
