Ismertető
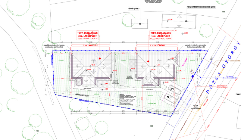
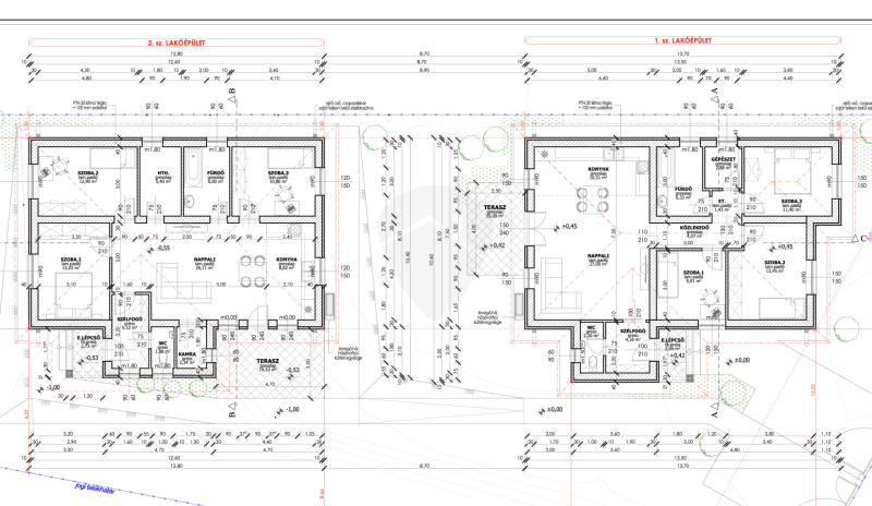
Sülysápon, a Dózsa György úton kínálunk eladásra háromszobás, amerikai konyhás nappalival rendelkező, energiatakarékos családi házakat. Csendes környezetben, egymástól teljesen különálló házak, nincsen összeépítve.
Megbízható, több referenciával rendelkező kivitelezőtől.
Az épületek kiemeléssel, külön helyrajzi számon kerülnek nyilvántartásba, így önálló tulajdonként vásárolhatók meg. A házak elrendezése úgy lett kialakítva, hogy mindegyik ingatlanhoz közel 400 m²-es telekrész tartozzon.
A szerkezet Porotherm P30N+F téglából épül, betonkoszorúval és fa födémszerkezettel. A lábazat 10 cm lépésálló polisztirollal, a homlokzat 10 cm grafitos szigeteléssel, míg a födém 25 cm ásványgyapottal kerül szigetelésre.
Háromrétegű üvegezésű, hat légkamrás műanyag nyílászárók
A megfelelő hőszigetelés mellett a megújuló energiát hasznosító gépészet is hozzájárul az alacsony fenntartási költségekhez.
Fűtés: levegő-víz hőszivattyú
Választható műszaki tartalom:
Hidegburkolat: 3.000 Ft/m²
Melegburkolat: 3.000 Ft/m²
Beltéri ajtók: 30.000 Ft/db
Fürdőkád: 40.000 Ft
Csaptelepek: 15.000 Ft/db
Magasabb árkategóriájú termékek választása is lehetséges, az árkülönbözet megtérítésével.
Az építtető korábbi elkészült projektjei referenciaként elérhetőek és megtekinthetőek! A képeken meglévő ingatlan, referenciaképként szerepel. A jelen ingatlan is hasonló terv alapján épül meg.
Részletek
-
Építés éve:
2025 -
Szobák száma:
4 -
Állapot:
új -
Épület típusa:
családiház -
Terasz:
15 m2 -
Kilátás:
udvari -
Tájolás:
DNY -
Telekméret:
400 m2 -
Övezet:
nincs adat -
Tetőtér:
nincs adat
