Ismertető
Új építésű, energiatakarékos családi ház Sülysápon – Kinizsi Pál utca
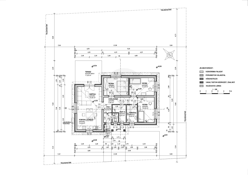
Eladó Sülysáp kedvelt részén, a Kinizsi utcában egy nettó 91,41 m²-es, amerikai konyhás nappali + 3 hálószobás, önálló családi ház. Az ingatlan egy 641 m²-es telken fekszik, és egy számos referenciával rendelkező, megbízható kivitelező valósítja meg.
Az építkezés állása és ütemezése:
Munkálatok kezdete: szerződéskötés után
Várható átadás: 9 hónappal utána
Konstrukció: 3% építési hitellel is megoldható ( itt a telket vásárolja meg a vevő )
Műszaki tartalom és szigetelés:
Az ingatlan a legkorszerűbb elvárásoknak megfelelően, kiváló energetikai besorolással épül:
-Falak: Porotherm P30 N+F tégla, betonkoszorúval.
-Tető: Fa födémes tetőszerkezet.
-Szigetelés: Homlokzat: 15 cm EPS
-Födém: 25 cm ásványgyapot
-Lábazat: 10 cm lépésálló polisztirol
-Nyílászárók: 6 légkamrás, 3 rétegű üvegezéssel ellátott műanyag thermo ablakok és ajtók.
Gépészet és rezsi:
A ház minimális fenntartási költségeit a levegő-víz hőszivattyús rendszer garantálja, amely megújuló energiát használva biztosítja a fűtést és a melegvizet.
Személyre szabható belső kialakítás:
A belső esztétikai megjelenés az Ön ízlésére van bízva! A megadott értékhatárig az ár tartalmazza a választható burkolatokat és szanitereket:
Burkolatok (hideg/meleg): 3.000 Ft/m²
Beltéri ajtók: 30.000 Ft/db
Fürdőkád: 40.000 Ft
Csaptelepek: 15.000 Ft/db
(Magasabb kategóriájú termékek választása esetén a különbözet fizetendő.)
Referenciák és bizalom:
A kivitelező korábban Sülysápon átadott, lakott ingatlanjai komoly érdeklődés esetén referenciaként megtekinthetőek. A
Finanszírozás és kedvezmények:
CSOK Plusz és Otthon Start igényelhető!
Díjmentes, bankfüggetlen hiteltanácsadás: Központunk versenyezteti a bankok ajánlatait, hogy Ön a legjobb konstrukciót kapja.
Egyedi kamatkedvezmények, hitelképesség vizsgálat és teljes körű ügyintézés.
Ne maradjon le álmai otthonáról! Amennyiben a hirdetés felkeltette érdeklődését, vagy további kérdése van, hívjon bizalommal a hét bármely napján!
Részletek
-
Építés éve:
2025 -
Szobák száma:
4 -
Állapot:
új -
Épület típusa:
családiház -
Terasz:
18 m2 -
Kilátás:
udvari -
Tájolás:
K -
Telekméret:
600 m2 -
Övezet:
nincs adat -
Tetőtér:
nincs adat
